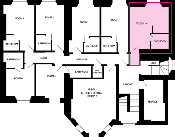
Floor plan for The SQUARE - Studio 19

img