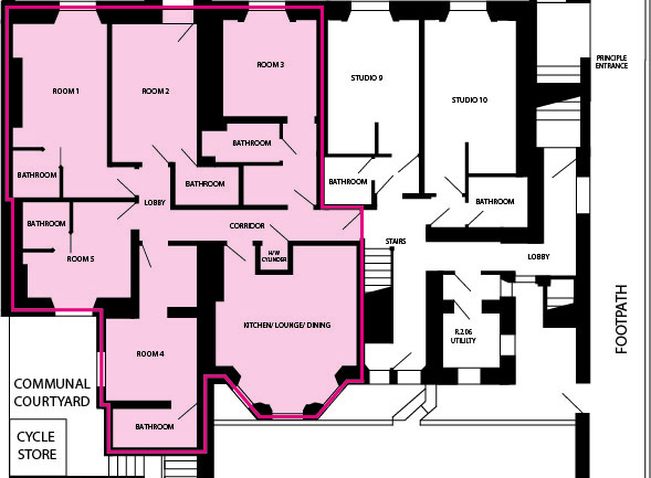
Floor plan for The SQUARE - Flat 8

img