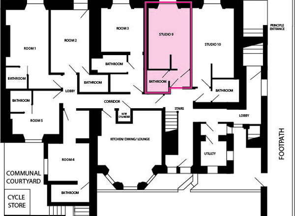
Floor plan for The SQUARE - Studio 9

img