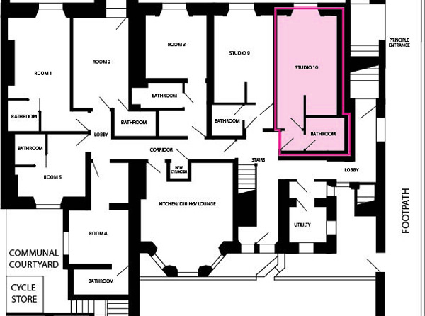
Floor plan for The SQUARE - Studio 10

img