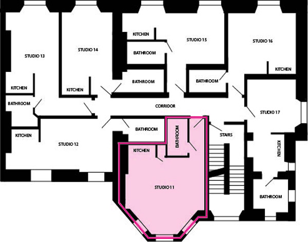
Floor plan for The SQUARE - Studio 11

img